Marysville SOLD Sold

  • $$674,990
Sold

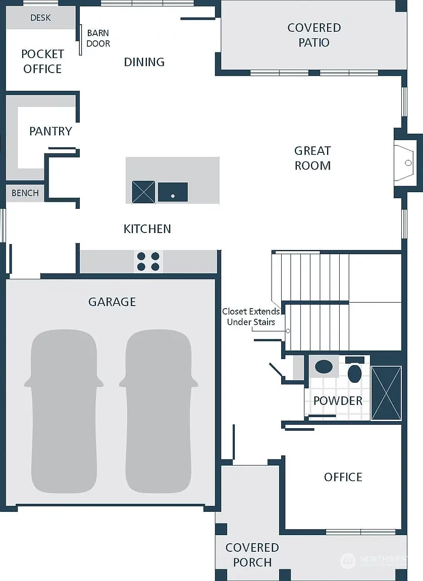
QUICK CLOSE MOVE IN READY HOME! The Ridge at Sunnyside IS Nestled just above the picturesque Sunnyside Blvd, this delightful community of homes offers residents relaxed living and beautiful surroundings. THE CLARK plan offers 2466 SQFT, 4 bedrooms and 2.75 bathrooms with den/office and a pocket office. Showcasing a dynamic exterior design, sought after living spaces & premium features, this home won’t be hard to will fall in love with. Enjoy standard features such as quartz slab countertops with modern tile backsplash, gorgeous engineered hardwood, luxury vinyl plank flooring, efficient heat pump for cooling/heating and so much more. New home warranty, energy efficient, low maintenance, updated safety & modern lifestyle design elements.

Price:
$$674,990
Address:
6717 43rd Street NE
Marysville, WA 98270
Terms:
For Sale
Property Type:
Apartment
MLS #:
NWM2023437

Call (425) 330-5155 for more details

Property Location